0
Skip to Content
Derrick Isaacson Architecture
Architecture Portfolio
Resume
Contact Information
Open Menu
Close Menu
Derrick Isaacson Architecture
Architecture Portfolio
Resume
Contact Information
Open Menu
Close Menu
Architecture Portfolio
Resume
Contact Information
Previous
Previous
Tuck Under
Next
Next
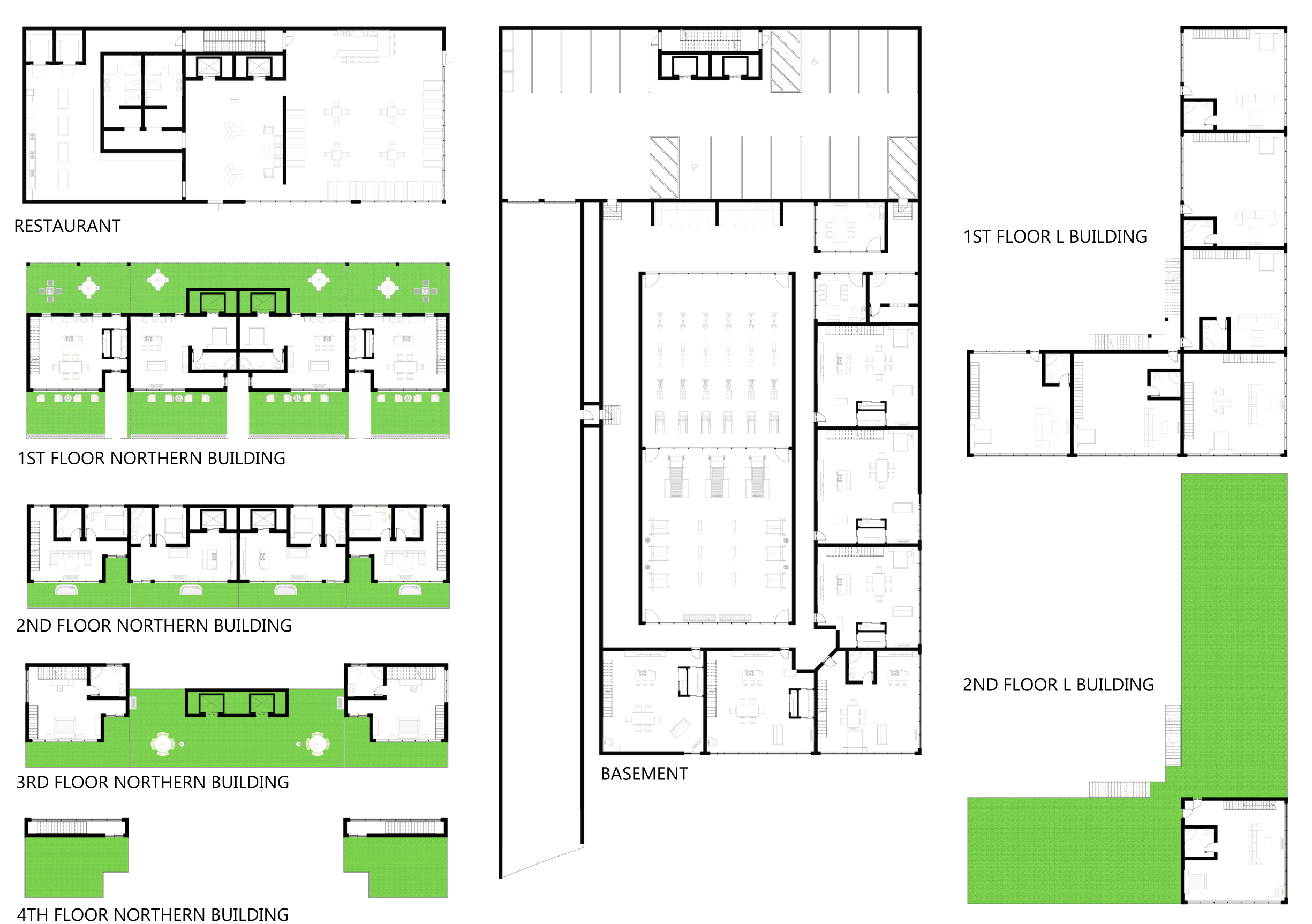
Housing Development Redevelopment